一、產品簡介:
GX-2型鋼制懸臂梁式稱重傳感器,一端固定、一端加載、 揺 柱式壓頭傳力,并且有良好的密封結構。受力后自動調心好,安裝容易、適用方便、互換性好,可用于制作各種超薄型電子汽車衡、單軌吊秤、料斗秤等。
二、技術指標:
|
量程 |
0.5~20t |
輸入電阻 |
385±10Ω |
|
靈敏度 |
2.0±0.010mV/V |
輸出電阻 |
350±3Ω |
|
非線性 /滯后/重復性 |
± 0.02%FS |
絕緣電阻 |
≥ 5000 MΩ |
|
蠕 變 |
± 0.02%FS |
供橋電壓 |
10(DC/AC) V |
|
零點輸出 |
± 1.00%FS |
工作溫度 |
- 20~+60℃ |
|
零點溫度系數 |
± 0.02%FS/10℃ |
安全過載 |
120%FS |
|
輸出溫度影響 |
± 0.02%FS/10℃ |
材質 |
合金鋼或不銹鋼 |
|
接線方式 |
輸入:紅(+)黑(-) 輸出:綠(+) 白(-) |
||
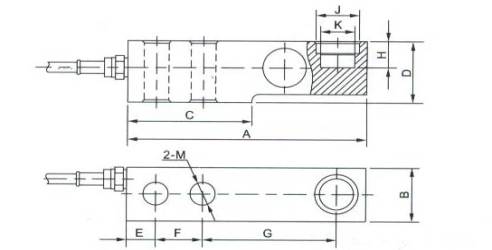
三、外形尺寸:

|
量程 :t |
尺寸 :(mm) |
||||||||||
|
A |
B |
C |
D |
E |
F |
G |
H |
J |
K |
M |
|
|
0.5-2 |
203.0 |
37.0 |
95.0 |
43.0 |
19.0 |
64.0 |
98.0 |
30.0 |
32.0 |
16.0 |
13.0 |
|
5 |
235.0 |
48.0 |
110.0 |
52.0 |
23.0 |
66.0 |
124.0 |
30.0 |
38.0 |
22.0 |
21.0 |
|
10 |
279.0 |
60.0 |
133.0 |
67.0 |
25.0 |
82.0 |
140.0 |
20.0 |
48.0 |
32.0 |
28.0 |
|
20 |
318.0 |
70.0 |
153.0 |
82.5 |
32.0 |
89.0 |
159.0 |
25.0 |
54.0 |
38.0 |
34.0 |





